技术数据 全自动立式托盘捆扎机
1. 电源供应: 3/ N、PE,(中性线=负载能力)(
2. 控制电压:24V直流
3. 额定功率: 最大3.0千瓦
4. 机器总重量:约。 800 至 1.000 公斤
5. 环境温度限制: + 5 °C 至 + 35 °C
6. 输送系统高度: 输送系统的顶边滚轮/链条最小最大 180 毫米800毫米
技术数据
KA5 |
||
表带质量和宽度 |
||
宠物 |
9.0 - 18.5 毫米 |
|
聚丙烯 |
/ |
|
带线圈 |
||
芯径 |
406毫米 |
|
外径 |
600毫米 |
|
宽度 |
150毫米 |
|
循环次数 |
7 |
|
表带存储 |
15米 |
|
皮带脱力 |
那。 5N |
|
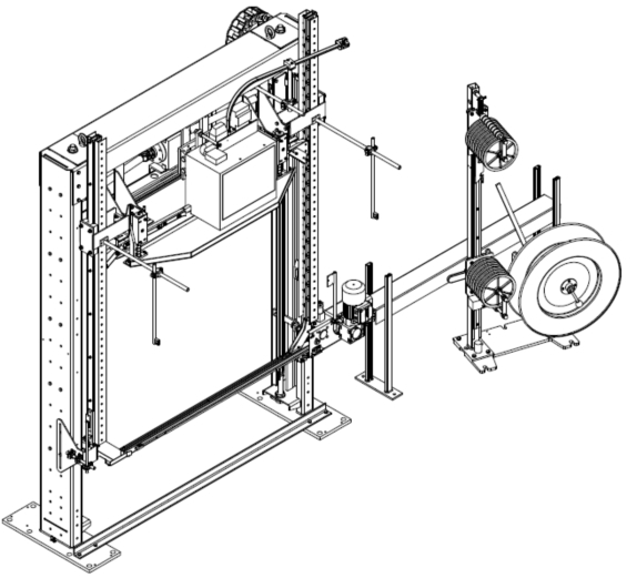
操作顺序:
1. 包裹被集中传送到捆扎位置。
2. 客户的控制系统向立式捆扎机发出无电压信号。
3. 通过向前移动喷枪系统关闭带轨道(滑槽)框架。
4. 带有捆扎头的机架模块向下移动到包装表面上。 这 带子绕轨道送入。
5. 捆扎循环开始。带子被拉回、拉紧、密封并切断。 通过向后移动喷枪系统打开带轨道(滑槽)框架。 带有捆扎头的机架模块移回到基座位置。
如果是这样,请将包裹运输到下一个捆扎位置并重复捆扎程序。
完成程序后,机器将无电压信号发送回输送机控制系统,以将负载运出机器。
立式捆扎机一般数据
控制面板:
位置: 5m电缆组长度内自由选择
方面: 高度: 1.060 毫米,包括柜底 1,060 人
宽度: 600毫米
深度: 480毫米
法规:遵循 VDE 0100/0113、EN 60204,防护等级 IP 54
通过无电压信号与 Cyklop 控制系统连接
可编程逻辑控制器: 西门子S7
触摸屏显示机器状态
通过无电压信号与控制系统连接 (2 个输入/3 个输出)
输入:1。紧急关闭,2 通道
2. 松开捆扎机
3.启动捆扎机
输出: 1. 紧急关闭,2通道
2. 释放输送机/捆扎机基本位置
3. 启动输送机-捆扎程序完成
4、一般故障
随时期待您的垂询和咨询。
战争
WhatsApp:+86 15634865861






